площадью 225,60 м2, по цене 36296000 по адресу Коммунарка район - Василия Ощепкова улица,2

Цена 36 296 000 р.
Район Новомосковский
Адрес Коммунарка район, Василия Ощепкова улица,2
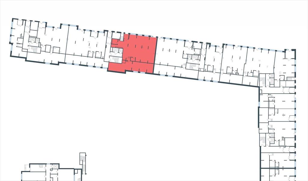
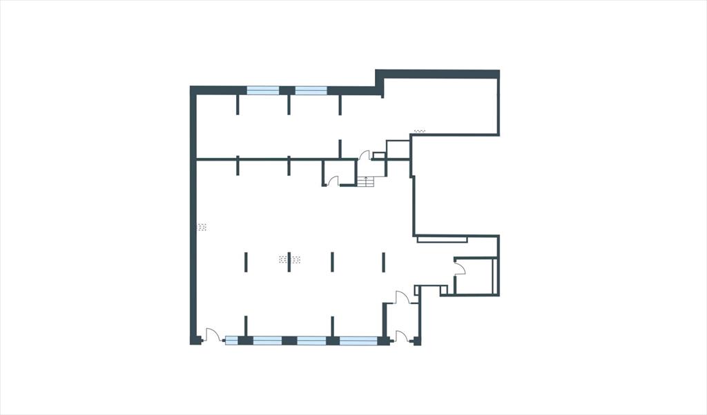
Площадь помещения 225,6 м2
Продаётся коммерческое помещение площадью 225,6 м2 на 1-м этаже 15-этажного жилого дома в ЖК «Москвичка». Основные преимущества: отдельный вход; место под вывеску; витринное остекление; круглосуточный доступ; помещение без ремонта, что позволяет обустроить его по своему вкусу и требованиям бизнеса; метро в пешей доступности - от 7 минут до м. Коммунарка; помещение находится в жилом комплексе комфорт-класса; развитый район с насыщенной инфраструктурой и активным пешеходным трафиком. Технические характеристики: наличие всех необходимых коммуникаций - водоснабжение, канализация, электроснабжение. Условия: помещение предоставляется без посредников, напрямую от собственника - компании «Аструм Недвижимость», которая управляет коммерческой инфраструктурой жилых комплексов ГК «Гранель». ЖК «Москвичка» - это уютная локация, рассчитанная на проживание более 12 тысяч человек, большинство из которых - молодые и активные люди в возрасте от 20 до 50 лет. Уже сейчас в комплексе успешно работают множество бизнесов и якорные арендаторы. Среди них: продуктовые магазины, кафе, салоны красоты и другие предприятия сферы услуг. Расположение комплекса в 700 метрах от станции метро «Коммунарка» обеспечивает отличный транспортный доступ, что позволяет жителям микрорайона добираться до центра столицы быстро и удобно. Весь микрорайон активно развивается и расширяется, создавая отличные перспективы для бизнеса. Наши менеджеры помогут вам подобрать наиболее подходящее помещение для вашего бизнеса. Звоните и узнайте подробности!
Объявление № 23394211
Дата подачи:
16 октября 2025 г. 3:09
Дата обновления:
15 октября 2025 г. 4:00
Просмотров 4 Хотите продать быстрее?

Продавец
Отдел продаж
Показать номер телефона
Пожаловаться
Комментарии:
Добавить